Descrizione
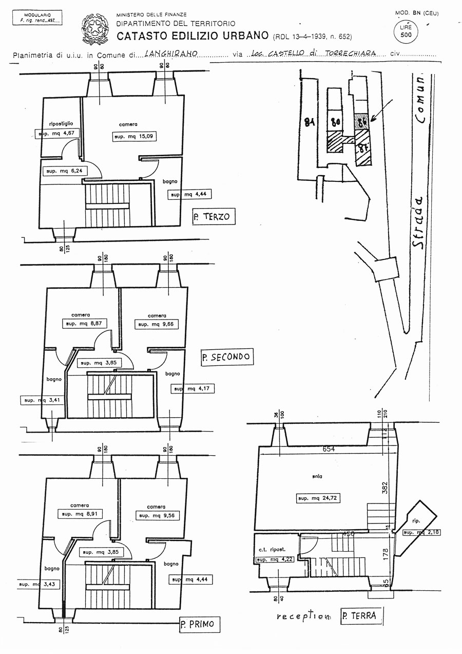
All’interno del borgo del castello di Torrechiara affittasi (in affitto d’azienda) Room & Breakfast composto da:
- 5 camere (4 doppie 1 suite)
- sala per colazioni/reception
Ogni camera dispone di bagno privato, TV, aria condizionata e Wi-Fi.








